售价:
84 万
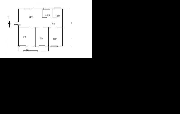
户型:
3室2厅1卫
建筑面积:
110.00 ㎡
1、车管所南邻,新三中东2、多层3楼 3室朝阳,带地下车位 储藏室15平3、毛坯现房 即买即装4、下证过户,过户费低5、付款方式。可首付一部分,下证过户可贷款
现房,可贷款
房东置换,诚心出售,欢迎看房,随时恭候您的到来。
本人从事房地产多年,好房多多,欢迎进入我的店铺查看,欢迎随时电话咨询,用我的服务为您置业安家保驾护航。
