售价:
120 万
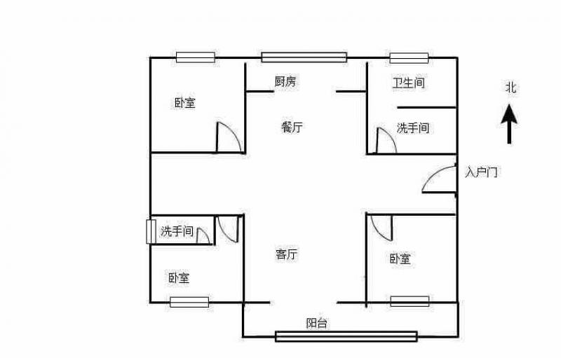
户型:
3室2厅2卫
建筑面积:
136.00 ㎡
业主急售随时看房繁华地段户型好近学校
单价:8823 元/㎡
类别:二手房
楼层:2楼/共5层
装修:精装
产权:70年
建于:2011年
朝向:朝南
小区:衡王府花园
地址:青州市范公亭西路 青州市范公亭西路
房源来自:个人
衡王府花园精装三室,二楼带车库120万元
房屋户型好,地段好,位置佳,交通便利,周边环境优美,配套设施完善,周边有菜市场超市生活方便,非常不错的房源
业主因置换房源,已经看好房子,交了定金,需要该房源出售来置换,故该房源诚心出售,到价签字 !产权清晰,产证在手,没有纠纷,可以随时过户!如需实地勘察该房源,可以随时看房,钥匙房东直接交给我了 ,就在手上!如果您有其他购房需求也可告知我,为您查找其他合适房源!
本人从事房地产多年,好房多多,欢迎进入我的店铺查看,欢迎随时电话咨询,用我的服务为您置业安家保驾护航。
