售价:
48 万
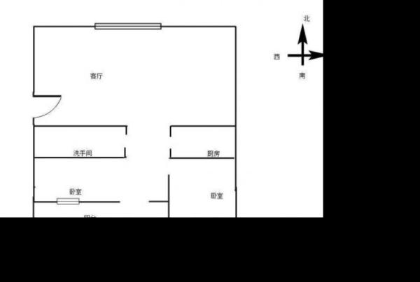
户型:
2室2厅1卫
建筑面积:
78.00 ㎡
核心卖点小区配套 :地理位置优越第二:公交十分方便。出行方便,上下班方便。第三:购物方便,节省您的宝贵时间。第四:小区绿化率高。环境优美。宁静和谐,好环境总会给人带来好心情。第五:房干净整洁,温馨舒适,窗明几净,就等着您的入住。第六:宽敞明亮,布局大方,采光非常好。第七:产权清晰,户型舒适,随时办手续业主心态房主诚心出售,放心交易,产权清晰,无纠纷,没有抵押与查封,保证您的交易安全。服务介绍我从事房产数多年,将秉着永不抱怨的服务宗旨,严格遵守行业规则主张透明坚决不吃差价,我发布的都是照片,绝不是为了吸引客户虚报房源,我将以专业的知识,以热情的服务,为你快速找到一个温馨的家,实现看房,贷款,过户一条龙服务,因为专业所以信赖,选择我选择专业,选择宝日房产,手机号就是微信号,我每天都会发布很多房源,总有一套适合你,期待与你相遇。
示例:多角度描述小区配套情况,格式示例:交通:距离地铁、车站多远等商业:银行、健身房等教育:学校(小学、中学)等医疗:附近医院等内部环境:环境整洁程度等车位情况:有无车位、车位多少等安保措施:保安情况等其他:比如居民素质、建筑材质等。
抢!富盈家园精装1楼,78平两室朝阳户型,带储藏室
抢!富盈家园精装1楼,78平两室朝阳户型,带储藏室
