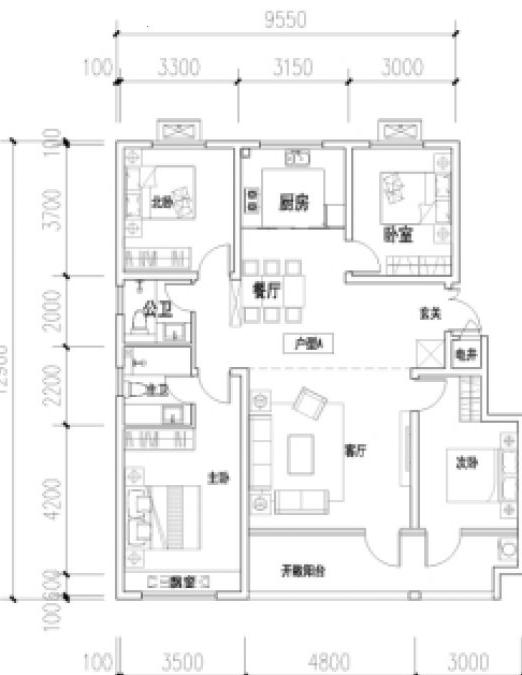
售价:
131 万
户型:
4室2厅2卫
建筑面积:
155.00 ㎡
核心卖点 好户型!满足业主日常生活的功能需求上,空间尺度更大、面积赠送更多,使洋房体验别墅的生活。 恒信原创·世家 更多的可变空间 更好的采光视野 更舒适的空间尺度 更大的 更科学的功能设计 业主心态 房主诚心出售,放心交易,产权明晰,无纠纷,没有查封,保证您的交易。 服务介绍 我是恒信侯军,本人从事房地产5年多,公司有大量好房源,欢迎进入我的店铺查看,欢迎随时电话咨询、相信我的专业,为您置业安家保驾护航。
恒信龙悦世家!新房不收费!城市封面!市中标杆!
恒信龙悦世家!新房不收费!城市封面!市中标杆!
